Atrakcyjne lokale biurowo-magazynowe przy ulicy Bursaki, obok Galerii Handlowej Olimp.
Klimatyzacja, ochrona, parking, sprzątanie, ogrzewanie z sieci miejskiej.
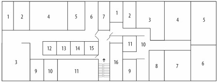
ogólny metraż: 450 m2 (lewa strona) + ewentualnie 450 m2 (prawa strona) – łączna powierzchnia 900 m2. Lokal można wynająć w całości lub na części (lokale o określonym metrażu 30m2, 50m2, 100m2, 150m2, 200m2 itp. do dowolnej konfiguracji).
Wysoki standard, wykładziny dywanowe, zaplecze socjalne w pełni wyposażone – kuchnie, wydzielone sanitariaty.
Jest możliwość wynajęcia garaży o wysokości do 4m, parking. Stałe łącze internetowe światłowodowe.
Pomieszczenia o powierzchni od 20-900 m2.
Cena: od 20 zł / m2 – do negocjacji.
Rzut powierzchni (450m lewe skrzydło + 450m prawe skrzydło):
Zobacz zdjęcia lokali do wynajęcia na I piętrze
W naszym budynku przy Bursaki 6A oferujemy także na wyjem lokalu na parterze:
Lokal 150m2 na hurtownię, magazyn, warsztat, biuro na parterze z wejściem bezpośrednio od ulicy-placu. Zdjęcia lokalu:







